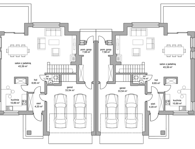
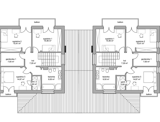
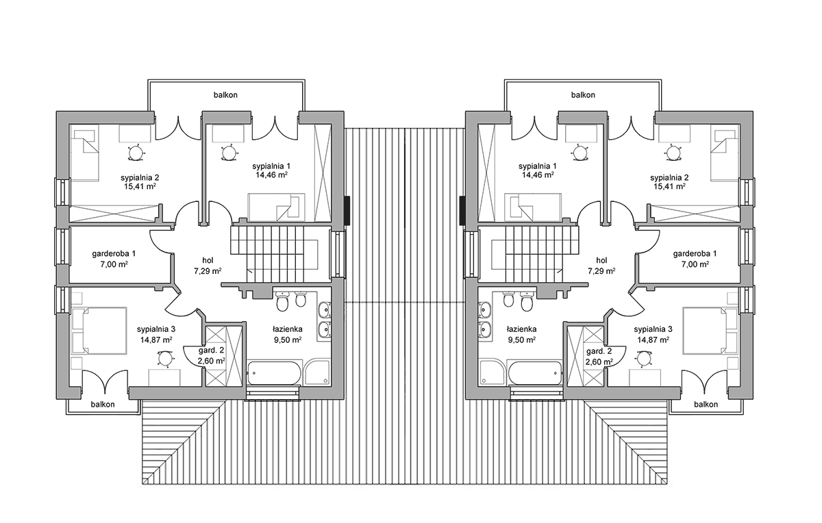
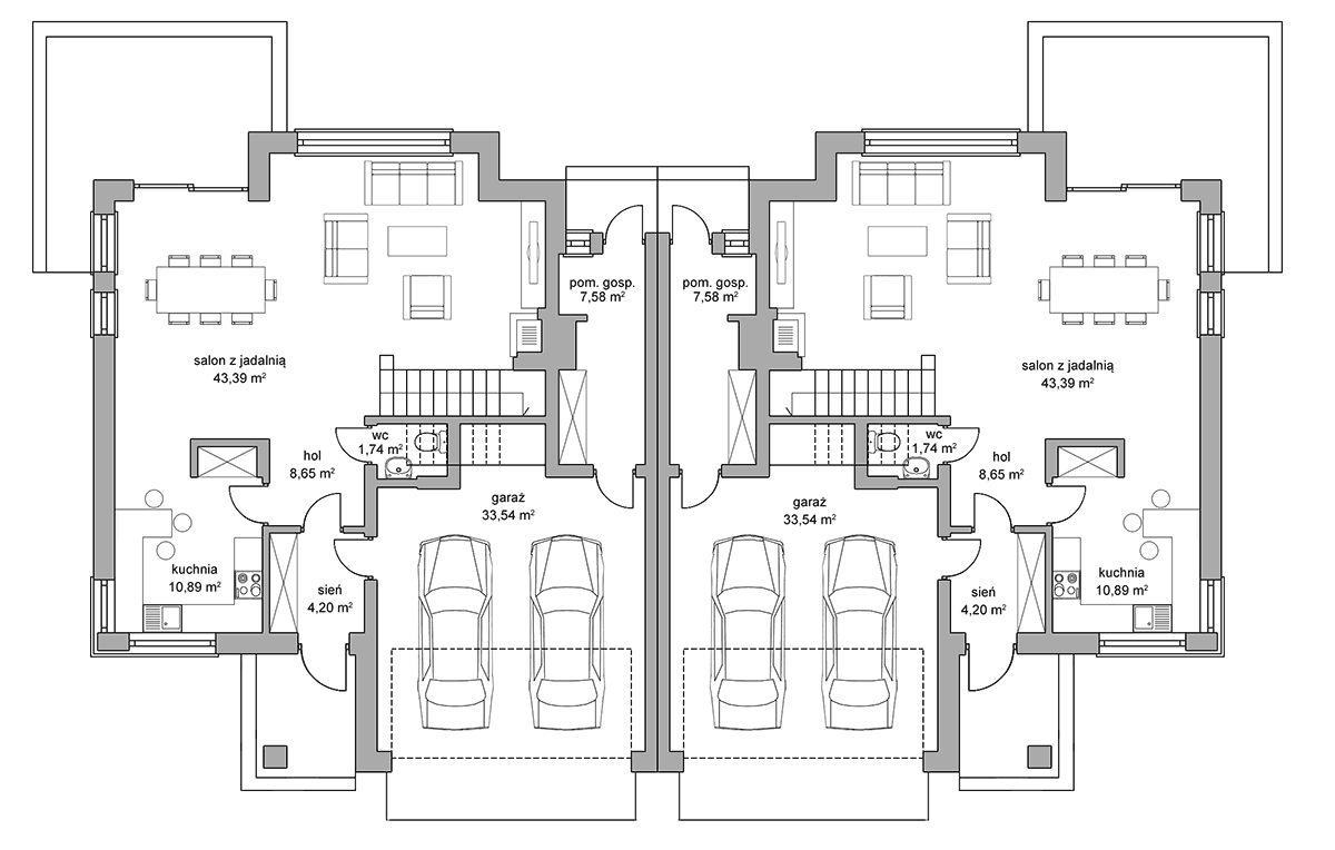
VILLA NR 119 A
VILLA MERLOT
769.000 złPrestiżowy dom o nowoczesnej formie z atrakcyjnymi detalami
242,94 m2
4
1
2



